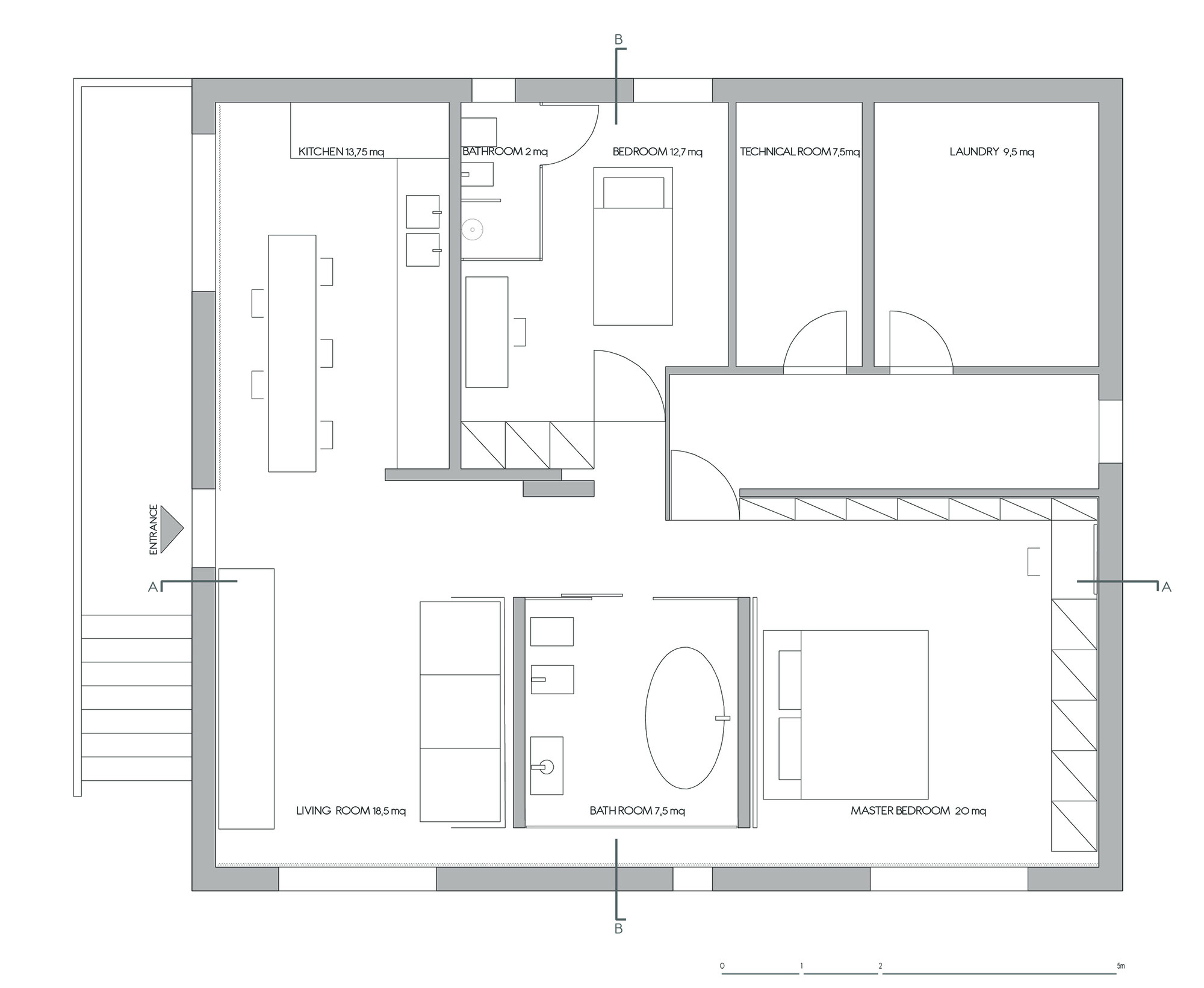
17/21 Images A Small Contemporary Home in White in San Miniato, Italy by LDA.iMdA Associated Architects (17)