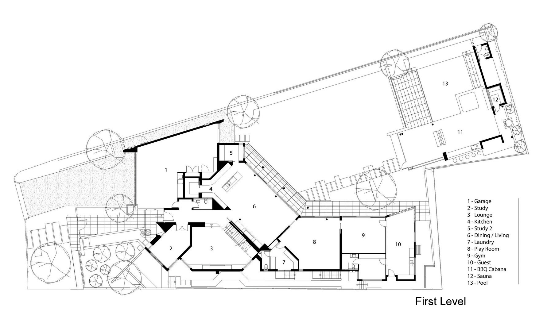
14/17 Images A Spacious Contemporary Home with Beautiful Wood Elements in Dalkeith by Hillam Architects (14)