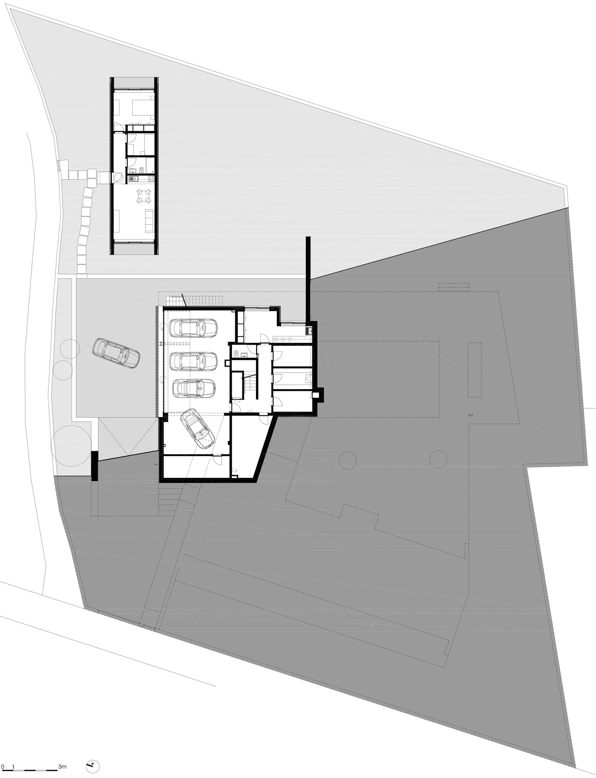
19/34 Images A Stylish and Functional Modern Home with a Luminous Character in Anadia, Portugal by Atelier d’Arquitectura J. A. Lopes da Costa (19)