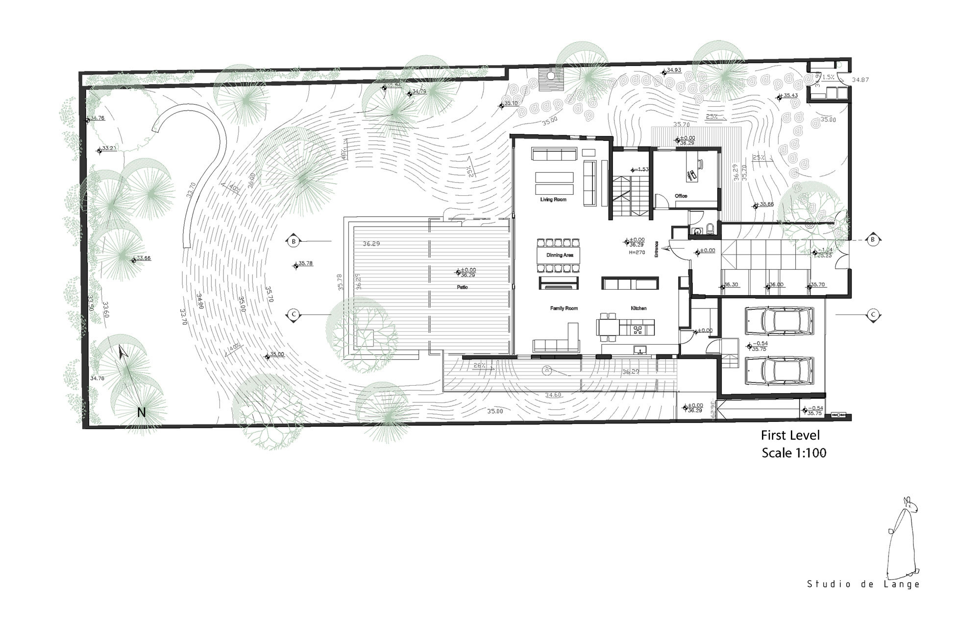
14/17 Images A Spacious Home for a Young Family of Five in Kfar Shmaryahu, Israel by Studio de Lange (14)