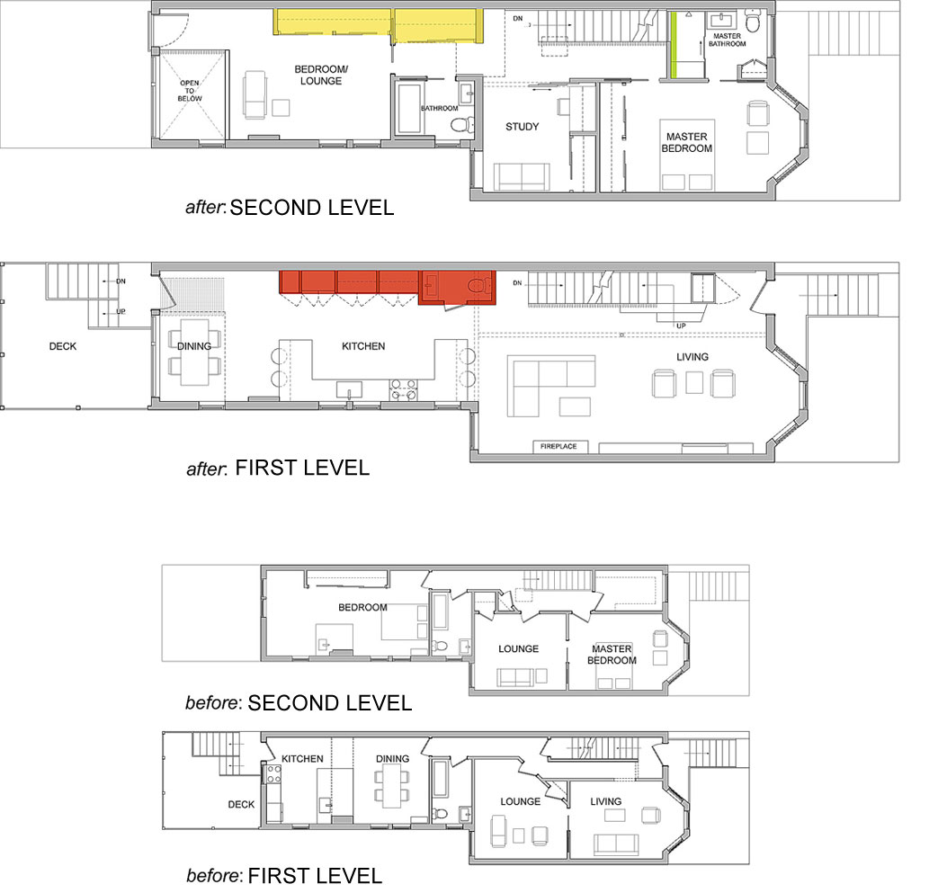
A Bright and Colorful Modern Row House with Playful Details in Washington, DC

A Bright and Colorful Modern Row House with Playful Details in Washington, DC by KUBE Architecture (13)
13/14 Images