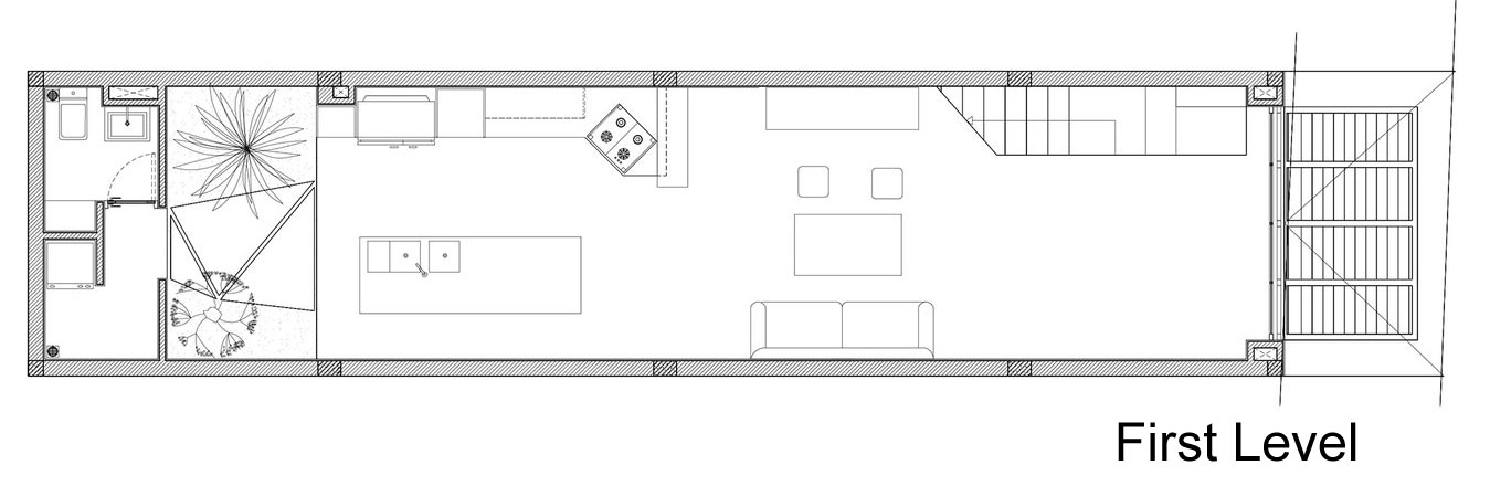
19/24 Images An Elegant and Light-Filled Modern Townhouse with a Folding-Up Shutter in Ho Chi Minh by MM++ architects (19)