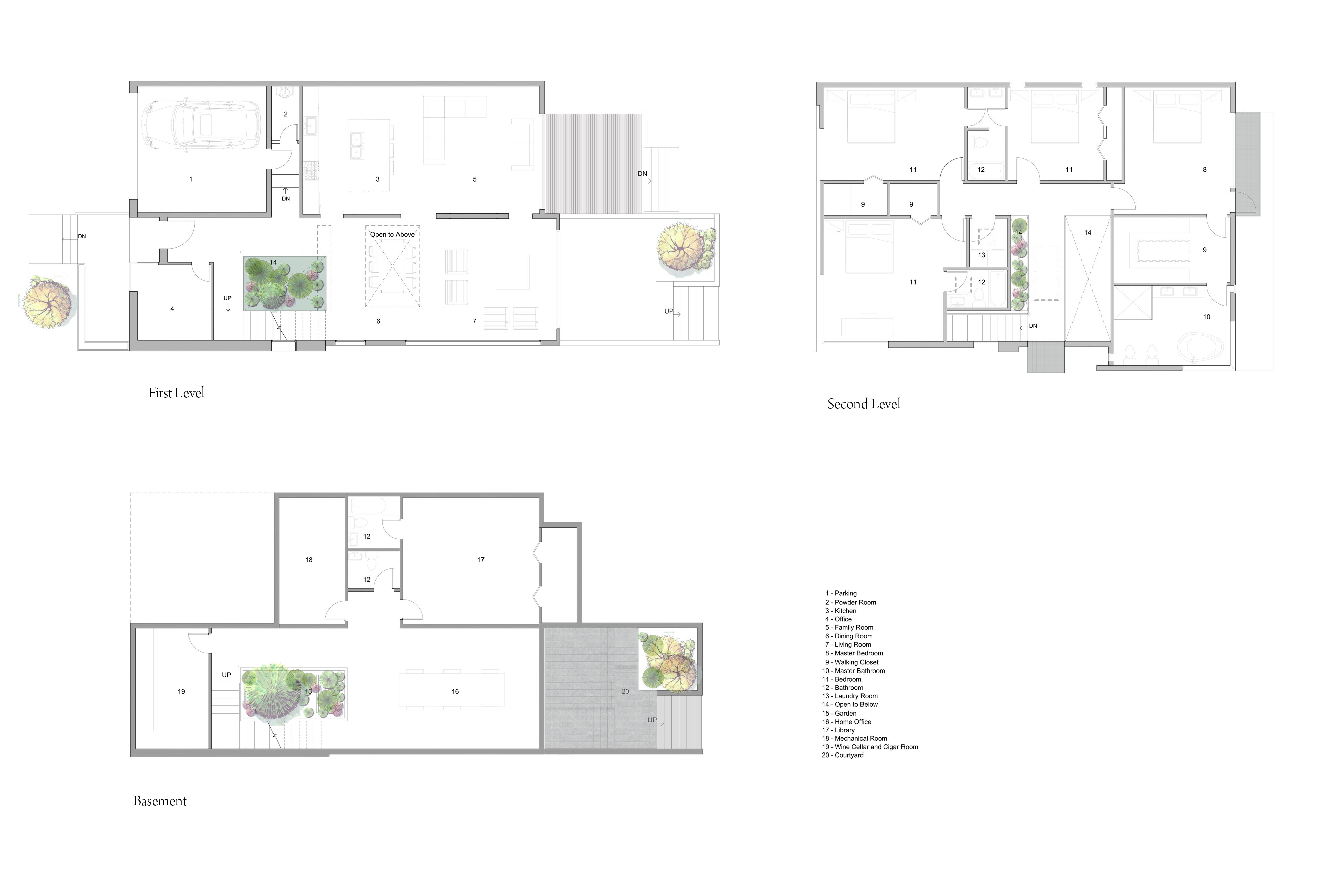
13/14 Images A Stylish Single-Family Home with Charm and Character in Toronto, Canada by Alva Roy Architects (13)