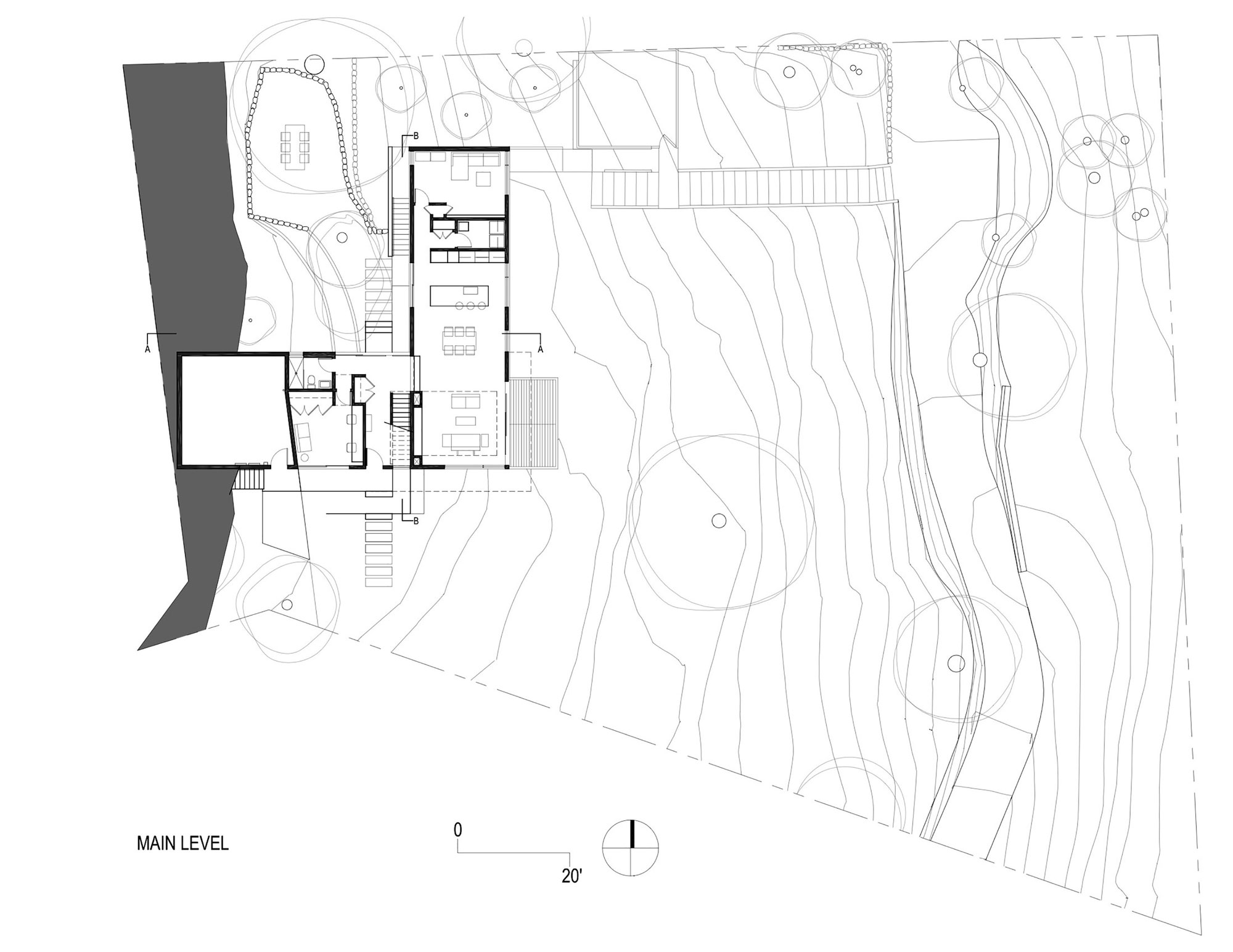
15/21 Images A Contemporary Home Features Patio with Cantilevered Deck in San Anselmo by Shands Studio (15)